Unsere Chalets 2 bis 4 Personen
Bis zu 4 Personen pro Chalet
Der Campingplatz verfügt über zwei Chalets, die am Ufer des Sees liegen. Diese auf Stelzen gebauten Unterkünfte, die durch ihre Holzkonstruktion und die überdachte Terrasse einen warmen Eindruck machen, bieten Ihnen allen Komfort und alle Annehmlichkeiten, die Sie für die Dauer Ihres Aufenthalts benötigen. Die großen Glasschiebetüren des Wohnzimmers führen direkt auf die Terrasse und ermöglichen es Ihnen, den Wohnraum bei schönem Wetter zu vergrößern. Mit der umkehrbaren Klimaanlage bleiben Sie im Sommer kühl und in der Nebensaison warm. Der Strand des See ist nur 200 m entfernt.
Diese komfortablen und voll ausgestatteten Unterkünfte verfügen über ein Schlafzimmer mit Doppelbett, einen Wohnraum mit ausgestatteter Küche, Wohnzimmer (Schlafsofa und Fernseher) und Esstisch, einen Raum für das Badezimmer und ein separates WC. Auf der großen, möblierten und geschützten Terrasse können Sie die Aussicht (auch bei schlechtem Wetter) und die Sonne genießen.
Um Ihre Entspannung bis zum Ende Ihres Urlaubs zu fördern, ist die Reinigung im Preis unserer Mietunterkünfte inbegriffen.
Vermietung für mindestens 2 Nächte und wochenweise im Juli und August.
Auch im Winter geöffnet
Anreise ab 16 Uhr und Abreise gegen 10 Uhr
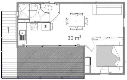
Plan eines Chalet mit 1 Schlafzimmer

Zu Ihrer Verfügung stehen
Ein Wohnraum mit einem Schlafsofa (140x190), TV, einer umkehrbaren Klimaanlage, einer Essecke mit einem Tisch (4 Personen) und 4 Stühlen, einer Küchenzeile mit einem Kühlschrank, einem Gefrierschrank, einer Kochplatte, einer Abzugshaube, einem Wasserkocher, einer Mikrowelle, einer Kaffeemaschine (Filterkaffee), einem Spülbecken mit Warmwasser, Geschirr und Küchenutensilien, Schränken für Lebensmittel, großen Schiebefenstern, die die Küche von der Terrasse trennen.
Ein Schlafzimmer mit einem Doppelbett (160x200), Bettdecken und Kopfkissen für 4 Personen (inklusive), ein Kleiderschrank.
Ein Badezimmer mit Dusche, Waschbecken mit Warmwasser und Regalen zur Aufbewahrung. Ein separates WC.
Eine überdachte Terrasse mit einer Tischgruppe und vier Stühlen.
Für weitere Informationen werfen Sie bitte einen Blick auf das Inventar :
Inventar chalet 2/4 Personen
WLAN (Geschwindigkeit je nach Auslastung des Campingplatzes), TV, Strom und Wasser inklusive, Privatparkplatz neben der Unterkunft (ein Auto pro Mietunterkunft), gesicherte Fahrradboxen mit Steckdose zum Aufladen von Elektrofahrrädern.
Ausleihen
Auf Anfrage: Gesellschafts- und Freiluftspiele, Babybett und Hochstuhl (bei der Buchung anzufordern), Toaster.
Gegen Aufpreis (bei der Buchung anzufragen): Bettwäsche (Bettbezug(e), Bettlaken und Spannbettlaken 12€/Doppelbett), Handtuchverleih (3€), Elektrogrill, Elektrofahrrad, Tretboot.
Information: Elektro- und Gasgrills sind auf den Terrassen erlaubt.





